Burgemeester de Bruijnstraat 65, 7006 AV Doetinchem

€ 400.000,- k.k

Afspraak maken
Kenmerken
Omschrijving
Foto's
360 panorama
Video's
Plattegrond
Kaart en Route
Brochure
Hypotheek advies

Doetinchem – Burgemeester de Bruijnstraat 65

TE KOOP! 458 m2 grond, vier slaapkamers én de mogelijkheid voor een vijfde… Dit is precies zo’n woning waar je niet zomaar aan voorbij loopt. Want hier draait het om ruimte. Niet alleen binnen, maar buiten. Wat een leuk huis! Een royaal perceel, een handige indeling en een hoekwoning met een eigen oprit en vergrootte stenen buitenberging.

Vanaf hier ben je binnen no-time in het levendige centrum van Doetinchem voor een ontspannen kop koffie of een snelle boodschap. Maar ook het trein- en busstation zijn binnen handbereik. En met allerlei voorzieningen zoals scholen, winkels, theaters, bioscopen, restaurants en sportfaciliteiten op een steenworp afstand hoef je nooit ver te zoeken naar wat vertier. Bovendien bereik je de belangrijke uitvalswegen naar steden als Arnhem en Enschede binnen enkele minuten.

Indeling
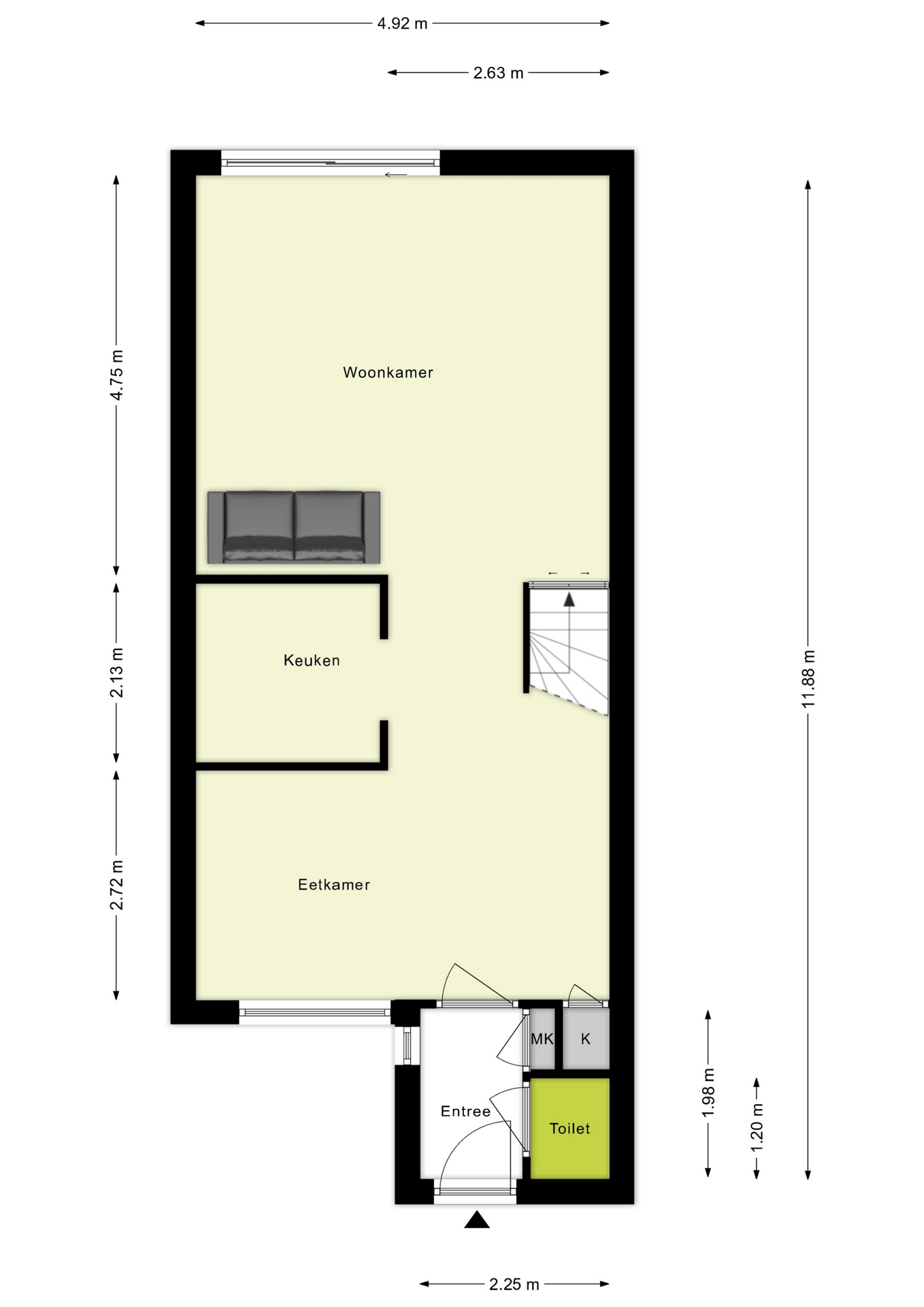
Begane grond
Je komt binnen in de hal met toilet. Vanuit hier loop je door naar de woonkeuken. De keuken is opgesteld in een U-vorm en voorzien van een basisinrichting met koelkast, vaatwasser, combimagnetron en kookplaat. Functioneel en netjes, maar ook een ideale plek om hier jouw droomkeuken te realiseren. Er is plek voor de eettafel, zodat je in verbinding staat met de keuken. De woonkamer ligt aan de tuinzijde en kijkt prettig weg over de groene achtertuin. Het is een fijne, lichte leefruimte met een logische indeling. Via de schuifpui stap je zo de tuin in.

Tuin
Wat een buitenruimte! Met een perceel van 458 m2 heb je hier echt wat te kiezen. Een groot terras, veel groen, speelruimte, moestuin of juist meerdere zitplekken: het kan allemaal zonder dat het vol voelt. Aan de voorzijde beschikt de woning over een eigen oprit met carport en een stenen buitenberging.

Eerste verdieping
Hier vind je vier slaapkamers. Stuk voor stuk praktisch in te delen. Twee slaapkamers zijn voorzien van vaste kasten en één slaapkamer beschikt ook nog over een wastafel. De badkamer is voorzien van een toilet, wastafelmeubel en douchecabine.

Tweede verdieping
Via de vaste trap bereik je de zolder met dakkapel. Mede door de dakkapel is hier een ruime verdieping ontstaan met de mogelijkheid voor een ruime vijfde slaapkamer. Daarnaast zijn hier de aansluitingen voor de wasmachine en droger, bergruimte achter de knieschotten en de cv-opstelling.

Enkele kenmerken:
– Ruim perceel van ca. 458 m2
– 4 slaapkamers + mogelijkheid tot 5
– 8 zonnepanelen (2021)
– Kunststof kozijnen
– Eigen oprit met carport
– Stenen buitenberging
– Woning met moderniseringsmogelijkheden
– Veel buitenruimte

Een royale hoekwoning met een sterke basis, veel kamers en vooral heel veel ruimte om het helemaal naar je eigen hand te zetten. Bel gerust met Vredegoor Lanting Makelaars voor een bezichtiging, we laten je het graag zelf ervaren. De VANAF-prijs is € 400.000,- k.k.

  • / foto's
  • Tuin 0
  • Tuin 1
  • Hal 2
  • Keuken 3
  • Woonkamer 4
  • Overloop 5
  • Slaapkamer 6
  • Slaapkamer 7
  • Badkamer 8
  • Slaapkamer 9
  • Slaapkamer 10
  • Zolder 11
Algemeen
Vraagprijs
€ 400.000,-
Status
Verkocht
Aanvaarding
In overleg
Bouw
Soort woonhuis
Woonhuis
Soort bouw
Hoekwoning
Bouwjaar
1975
Soort dak
Zadeldak
Oppervlakten en inhoud
Woonoppervlakte
127 m2
Inhoud
448 m3
Perceeloppervlakte
458 m2
Indeling
Aantal kamers
6
Aantal slaapkamers
4
Aantal woonlagen
3
Voorzieningen
Glasvezel kabel, Zonnepanelen
Tuin en overige buiten ruimtes
Ligging
Aan rustige weg, In woonwijk
Tuin
Achtertuin, Voortuin, Zijtuin
Ligging tuin
Zuid
Kwaliteit tuin
Verzorgd
Schuur/berging
1
Schuur/berging soort
Vrijstaand steen
Schuur/berging voorzieningen
Voorzien van elektra
Soort garage
Carport, Geen garage
Energie
Energielabel
B
Isolatie
Dakisolatie, Muurisolatie, Vloerisolatie, Dubbelglas, Volledig geïsoleerd
Verwarming
CV ketel
Warm water
CV ketel
Cv-ketel
Nefit HR
  • Plattegrond 1
  • Plattegrond 2
  • Plattegrond 3
  • Plattegrond 4
  • Plattegrond 5
Plattegrond
Plattegrond
Plattegrond
Plattegrond
Plattegrond

Advies

Wij adviseren je graag bij het kiezen van een hypotheek. Neem
vrijblijvend contact met ons op voor meer informatie.

Contact
  • /
  • Dit veld is bedoeld voor validatiedoeleinden en moet niet worden gewijzigd.

Afspraak maken?

0314 74 60 60