Edo Bergsmastraat 3, 7009 BK Doetinchem

€ 619.000,- k.k

Afspraak maken
Kenmerken
Omschrijving
Foto's
360 panorama
Video's
Plattegrond
Kaart en Route
Brochure
Hypotheek advies

Doetinchem – Edo Bergsmastraat 3

Ben je op zoek naar een vrijstaande woning waar je zó in kunt en waar je bovendien kunt genieten van een royaal perceel met een heerlijk groene tuin? Dan is de Edo Bergsmastraat 3 in Doetinchem er absoluut één om op je lijstje te zetten. Hier woon je heerlijk rustig op een ruim opgezet woonerf, omringd door voornamelijk vrijstaande woningen, terwijl het stadscentrum en de bosrand van de Kruisbergse bossen zich op korte afstand bevinden. Die combinatie… die kom je niet vaak tegen.

De afgelopen jaren is de woning op diverse punten gemoderniseerd en verduurzaamd. Zo is o.a. het toilet, badkamer, de meterkast vernieuwd en is de cv-opstelling recent vervangen (2026). Op de verdieping zijn er kuststof kozijnen geplaatst en vloerverwarming aangelegd. Tevens is het dak gerenoveerd. Hierdoor zijn er nieuwe dakpannen, folie en dakisolatie aangebracht. Op het achterdakvlak zijn 10 zonnepanelen geplaatst.

Wonen nabij het centrum betekent genieten van de voordelen! Je loopt zo de stad in voor een kop koffie. Maar je bent ook in no-time op het trein- en busstation. Voor natuurliefhebber nog fijner, je woont op slechts een paar honderd meter van de bosrand! Ook bevinden zich op korte afstand allerhande voorzieningen zoals scholen, winkels, horecagelegenheden en sportaccommodaties. Tevens zijn de ontsluitingswegen richting Arnhem/Enschede binnen enkele autominuten bereikbaar. Deze combinatie maakt het voor velen een gewilde woonlocatie!

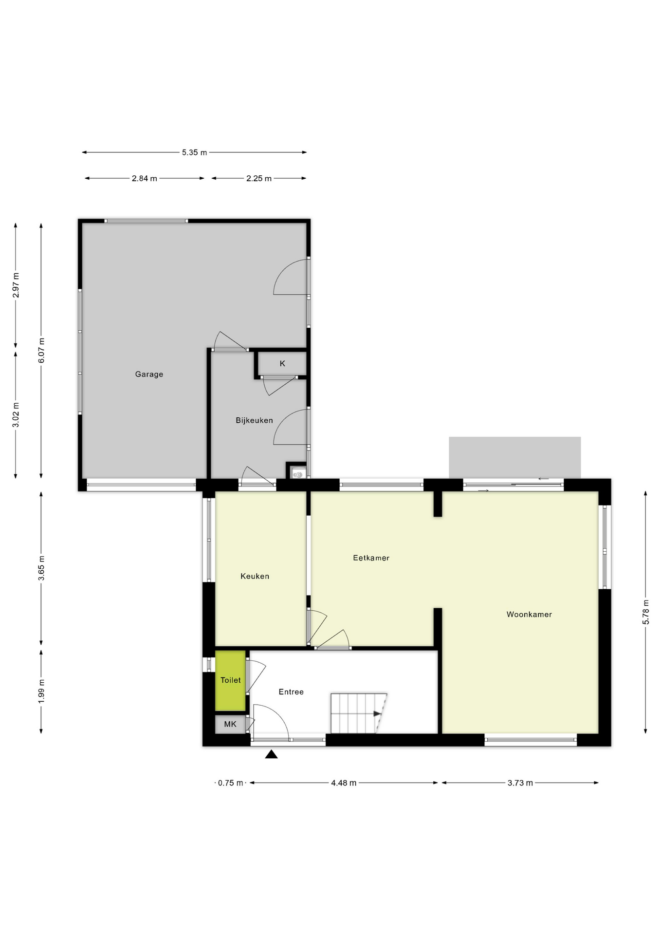
Indeling
Begane grond
Via de entree kom je binnen in de ruime ontvangsthal met modern toilet (2022), trapopgang en toegang tot de leefruimte. De L-vormige woonkamer is licht en ruim en beschikt over een schuifpui naar de tuin. Daarnaast is de begane grond voorzien van een nette PVC-vloer. De woonkamer loopt prettig door richting de keuken, er is een fijne doorkijk naar de keuken gerealiseerd, wat zorgt voor een open en ruimtelijk gevoel. De keuken is voorzien van een keurige opstelling, een granieten werkblad, inductiekookplaat en vaatwasser. Ook heb je hier direct toegang tot de praktische bijkeuken met achteringang en witgoedaansluiting. Vanuit de bijkeuken is er toegang tot de aangebouwde L-vormige garage, een bijzonder fijne extra ruimte die meer dan voldoende bergruimte bied.

Tuin
Wat deze woning écht bijzonder maakt, is het perceel en de groene tuin rondom. Hier geniet je van volop privacy, rust en een fijne zonligging, een heerlijke plek. In de achtertuin staat bovendien een riant tuinhuis met schuifwanden, airco en eigen toilet. Perfect als thuiswerkplek, hobbyruimte of juist een rustige plek voor jezelf.

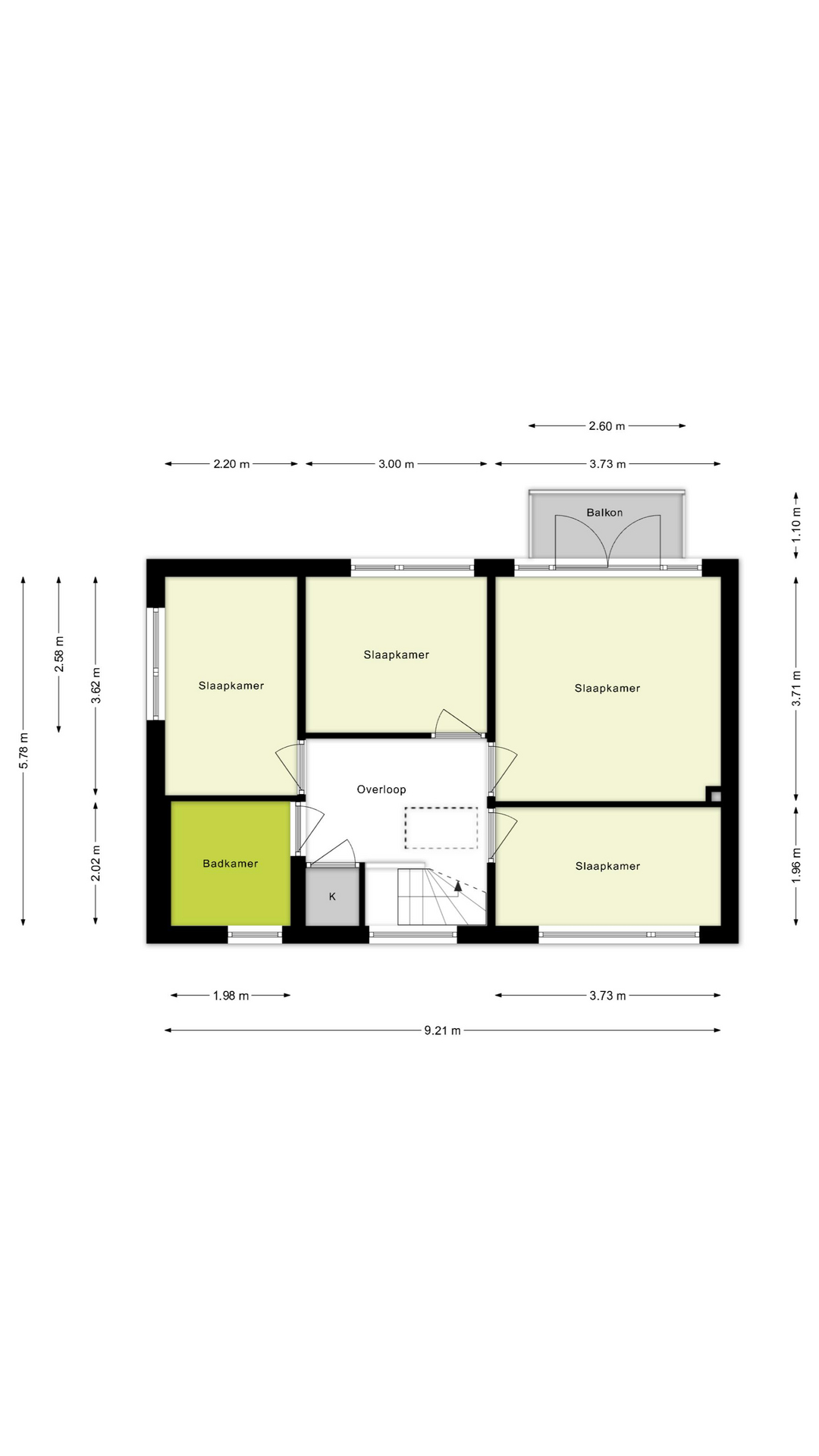
Eerste verdieping
Op de eerste verdieping kom je op de overloop met vaste kast en airco. Vanaf hier zijn vier slaapkamers bereikbaar, waaronder de ouderslaapkamer met toegang tot het balkon. De indeling is op deze verdieping aangepast, waardoor er een grotere badkamer (2018) is ontstaan welke is voorzien van een inloopdouche, toilet en wastafelmeubel. De gehele verdieping is bovendien voorzien van vloerverwarming, wat zorgt voor extra comfort in het dagelijks gebruik.

Vliering
Via een vlizotrap is de bergzolder bereikbaar met extra bergruimte.

Maten
Los van de ca. 114 m2 aan woonoppervlakte beschikt de woning over ca. 26 m2 overige inpandige ruimte (inpandige garage), ca. 3 m2 gebouw gebonden buitenruimte (balkon) en ca. 22 m2 externe buitenruimte (riant tuinhuis).

Bijzonderheden:
– Riant perceel van 649 m² met veel privacy en groen
– Gerenoveerd dak met o.a. nieuwe pannen
– Cv-opstelling vernieuwd in 2026
– 10 zonnepanelen uit 2022
– Groepenkast vernieuwd
– PVC-vloer op de begane grond
– Doorkijk tussen woonkamer en keuken voor extra licht en ruimte
– 4 slaapkamers, waarvan 1 met balkon
– Luxe badkamer met inloopdouche, toilet en wastafelmeubel
– Vloerverwarming op de gehele 1e verdieping
– Wel zo fijn, airco op de overloop
– Tuinhuis met pantry, airco, schuifwanden en eigen toilet
– Aangebouwde garage met multifunctionele mogelijkheden

De uitstekende locatie, het royale perceel en de reeds uitgevoerde verbeteringen maken dit een woning die je echt gezien moet hebben. Neem contact op met Vredegoor Lanting Makelaars voor een bezichtiging. We laten je deze woning graag zelf ervaren, kom je ook kijken? Wij hanteren een VANAF prijs van € 619.000,- kosten koper.

  • / foto's
  • Hal 0
  • Woonkamer 1
  • Keuken 2
  • Bijkeuken 3
  • Overloop 4
  • Slaapkamer 5
  • Slaapkamer 6
  • Slaapkamer 7
  • Slaapkamer 8
  • Badkamer 9
  • Tuin 10
  • Veranda 11
  • Veranda 12
Algemeen
Vraagprijs
€ 619.000,-
Status
Verkocht onder voorbehoud
Aanvaarding
In overleg
Bouw
Soort woonhuis
Woonhuis
Soort bouw
Vrijstaande woning
Bouwjaar
1963
Soort dak
Zadeldak
Oppervlakten en inhoud
Woonoppervlakte
114 m2
Inhoud
509 m3
Perceeloppervlakte
649 m2
Indeling
Aantal kamers
5
Aantal slaapkamers
4
Aantal woonlagen
3
Voorzieningen
Mechanische ventilatie, Rolluiken, Buitenzonwering, Airconditioning, Glasvezel kabel, Zonnepanelen
Tuin en overige buiten ruimtes
Ligging
Aan rustige weg, In bosrijke omgeving
Tuin
Achtertuin, Voortuin, Zijtuin
Ligging tuin
Zuid
Kwaliteit tuin
Verzorgd
Soort garage
Aangebouwd steen
Voorzieningen garage
Elektra
Energie
Energielabel
D
Isolatie
Dakisolatie
Verwarming
CV ketel, Vloerverwarming gedeeltelijk
Warm water
CV ketel
Cv-ketel
Remeha
  • Plattegrond 1
  • Plattegrond 2
  • Plattegrond 3
  • Plattegrond 4
Plattegrond
Plattegrond
Plattegrond
Plattegrond

Advies

Wij adviseren je graag bij het kiezen van een hypotheek. Neem
vrijblijvend contact met ons op voor meer informatie.

Contact
  • /
  • Dit veld is bedoeld voor validatiedoeleinden en moet niet worden gewijzigd.

Afspraak maken?

0314 74 60 60