Mackaylaan 63, 7003 AS Doetinchem

€ 393.500,- k.k

Afspraak maken
Kenmerken
Omschrijving
Foto's
360 panorama
Video's
Plattegrond
Kaart en Route
Brochure
Hypotheek advies

Doetinchem – Mackaylaan 63

Fijn thuiskomen in een heerlijk huis uit 2011. Soms stap je een woning binnen en klopt het gewoon. De sfeer, het licht, het voelt verzorgd en prettig aan. Tevens aan ruimte geen gebrek. Want de woonoppervlakte is ca. 149 m2 groot! Oftewel, een modern en groot huis met een goede basis, fijne ruimtes en een tuin waar je straks met plezier je dagen afsluit.

Gelegen op slechts een korte afstand van het bruisende winkelcentrum van Doetinchem, vind je deze fantastische woning. Omringd door basisscholen, speeltuinen voor de kleintjes en de prachtige natuur van De Zumpe, biedt deze locatie het beste van twee werelden. Bovendien zijn de belangrijkste uitvalswegen binnen handbereik, waardoor je moeiteloos de hele regio kunt verkennen. Het wordt niet beter dan dit!

Indeling
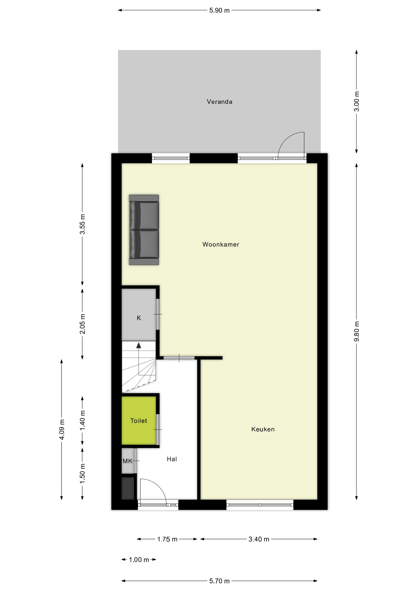
Begane grond
Je komt binnen in de hal met toilet en loopt door naar de woonkamer. Wat hier direct opvalt? Het lichte karakter en de strakke afwerking. In 2023 is de begane grond voorzien van een mooie PVC-vloer, wat zorgt voor een rustige en moderne uitstraling. Een perfecte basis voor ieder interieur.
De woonkamer is tuingericht en voelt heerlijk open aan. Aan de voorzijde vind je de ruime keuken, een fijne plek waar koken en gezelligheid samenkomen. De keuken is compleet uitgerust met een koelkast, vriezer, vaatwasser, oven en kookplaat. Of je nu snel een doordeweekse maaltijd maakt of uitgebreid kookt voor vrienden.

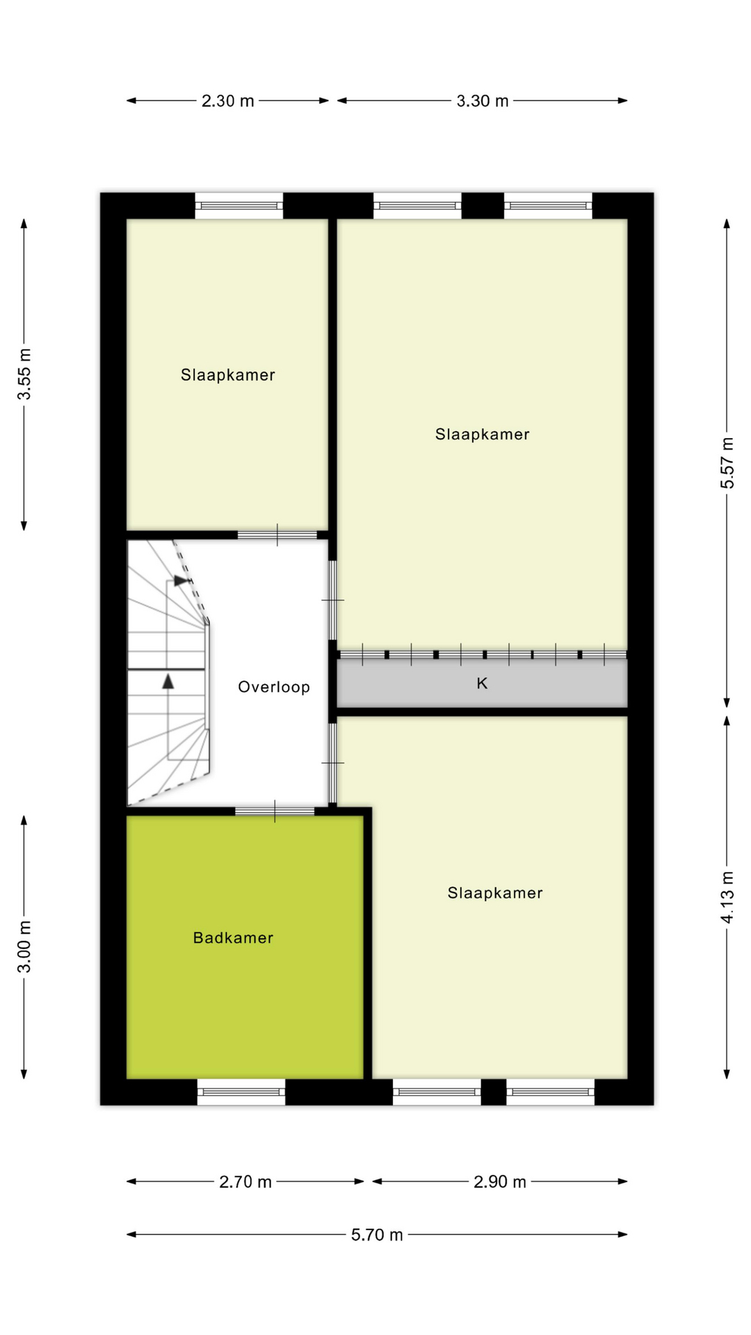
Eerste verdieping
Op de eerste verdieping vind je drie slaapkamers. Ideaal voor een jong gezin, thuiswerkplek of hobbyruimte. De badkamer is compleet uitgevoerd met een ligbad, douche, toilet en een wastafelmeubel. Alles wat je nodig hebt, overzichtelijk en comfortabel ingericht.

Tweede verdieping
De tweede verdieping biedt volop mogelijkheden. Een extra slaapkamer? Werkruimte? Sportruimte? Hier kun je nog alle kanten op en het helemaal naar jouw wensen indelen.

Buitenleven
En dan de tuin. Een fijne plek waar je straks graag zit. Onder de fraaie overkapping is ruimte genoeg voor een gezellige tuinset. Hier geniet je en blijf je op lange zomeravonden nog net wat langer buiten zitten. Achterin vind je een berging voor fietsen en extra spullen.

Waarom dit een huis is om niet te missen:
– Woonoppervlakte van maar liefst ca. 149 m2!!
– Bouwjaar 2011
– Moderne uitstraling en goed onderhouden
– PVC-vloer begane grond (2023)
– Complete keuken met inbouwapparatuur
– Drie slaapkamers + royale zolderverdieping
– Fijne overkapping in de tuin

Ben jij benieuwd of dit jouw nieuwe thuis kan worden. We laten het je graag zien, ga jij met Vredegoor Lanting Makelaars op woonreis? De VANAF prijs is € 393.500,-

  • / foto's
  • Woonkamer 0
  • Keuken 1
  • Tuin 2
  • Overloop 3
  • Slaapkamer 4
  • Slaapkamer 5
  • Slaapkamer 6
  • Badkamer 7
  • Zolder 8
Algemeen
Vraagprijs
€ 393.500,-
Status
Verkocht onder voorbehoud
Aanvaarding
In overleg
Bouw
Soort woonhuis
Woonhuis
Soort bouw
Tussenwoning
Bouwjaar
2011
Soort dak
Zadeldak
Oppervlakten en inhoud
Woonoppervlakte
149 m2
Inhoud
507 m3
Perceeloppervlakte
140 m2
Indeling
Aantal kamers
5
Aantal slaapkamers
4
Aantal woonlagen
3
Voorzieningen
Mechanische ventilatie, Dakraam, Glasvezel kabel
Tuin en overige buiten ruimtes
Ligging
Aan rustige weg, In woonwijk
Tuin
Achtertuin, Voortuin
Ligging tuin
Noord
Kwaliteit tuin
Verzorgd
Schuur/berging
1
Schuur/berging soort
Vrijstaand hout
Schuur/berging voorzieningen
Voorzien van elektra
Soort garage
Geen garage
Energie
Energielabel
A
Isolatie
Dakisolatie, Muurisolatie, Vloerisolatie, Dubbelglas, Volledig geïsoleerd
Verwarming
CV ketel
Warm water
CV ketel
Cv-ketel
Intergas HR
  • Plattegrond 1
  • Plattegrond 2
  • Plattegrond 3
  • Plattegrond 4
  • Plattegrond 5
Plattegrond
Plattegrond
Plattegrond
Plattegrond
Plattegrond

Advies

Wij adviseren je graag bij het kiezen van een hypotheek. Neem
vrijblijvend contact met ons op voor meer informatie.

Contact
  • /
  • Dit veld is bedoeld voor validatiedoeleinden en moet niet worden gewijzigd.

Afspraak maken?

0314 74 60 60