van Leeuwenhoeklaan 53, 7002 HM Doetinchem

€ 349.000,- k.k

Afspraak maken
Kenmerken
Omschrijving
Foto's
360 panorama
Video's
Plattegrond
Kaart en Route
Brochure
Hypotheek advies

Doetinchem – van Leeuwenhoeklaan 53

Een goede afwerking, vier slaapkamers, een zonnige tuin en een garage waar je alles in kwijt kunt. Dat is de Van Leeuwenhoeklaan 53 in één zin. Maar eenmaal binnen ontdek je pas echt hoe fijn deze instapklare woning is. Licht, slim ingedeeld en klaar om er direct van te genieten.

De ligging is ideaal, op loopafstand van het vernieuwde buurtwinkelcentrum Overstegen en met goede bereikbaarheid dankzij de aanleg van de Oostelijke randweg. Genieten van veel groen in de zomermaanden met een grasveld aan de voorzijde, en rustig wonen het hele jaar door.

Indeling
Begane grond
Je stapt binnen in de hal met toilet en trapopgang. Loop door naar de woonkamer en laat het licht maar binnenvallen! De pvc-vloer uit 2025 maakt de kamer af en met de airco zit je hier het hele jaar door comfortabel. Kijk eens naar het uitzicht over het veldje voor de deur, lekker groen en rustig. Achterin de woning wacht de keuken op je. Hier kun je zo aan de slag met koken: een koelkast, vaatwasser, combimagnetron, inductiekookplaat en een stoer granieten aanrechtblad. En vanaf hier loop je zo de tuin in.

Tuin
Zodra je vanuit de keuken de tuin in loopt, merk je meteen hoe fijn deze plek is. De tuin ligt op het westen, dus je hebt heerlijk wat zonuren in de middag en avond. Er is een gezellige overkapping met een fijne zitplek, perfect om met vrienden of familie te borrelen. Voor de culinaire liefhebber is er zelfs een pizzaoven en een haard, waardoor je extra sfeer creëert op zwoele zomeravonden of knusse herfstmiddagen. Ook heb je de mogelijkheid om hier op te barbecueën. Kortom, een tuin waar je volop kunt genieten en ontspannen.

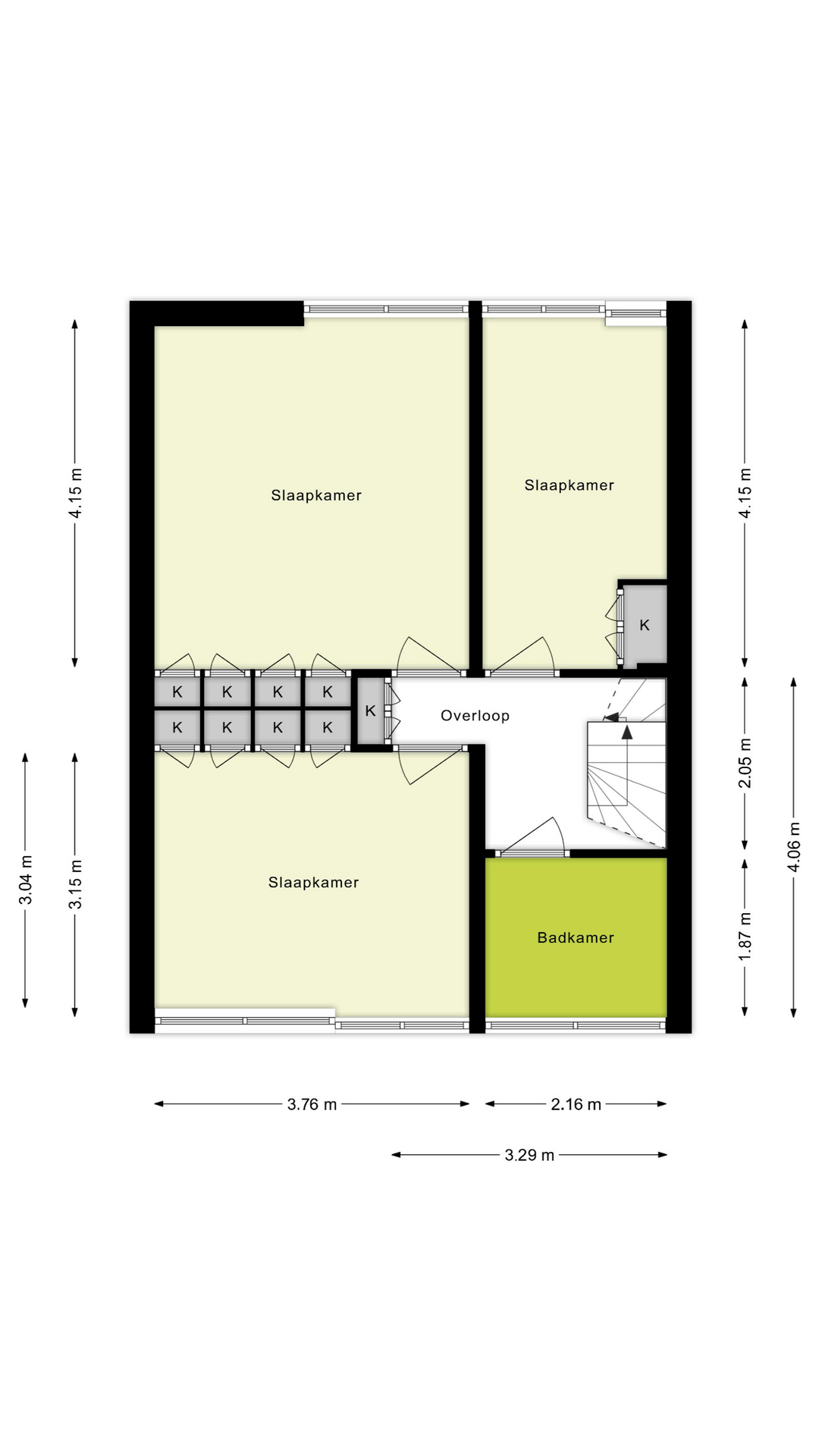
Eerste verdieping
Boven aangekomen zijn er drie ruime slaapkamers. Allemaal voorzien van praktische kasten, dus plek genoeg voor je kleding en spullen. De badkamer ligt aan de voorzijde en is modern en strak: een toilet, dubbele wastafel en een ruime inloopdouche. Ideaal om de dag fris te beginnen. Ook is er op deze verdieping een airco aanwezig.

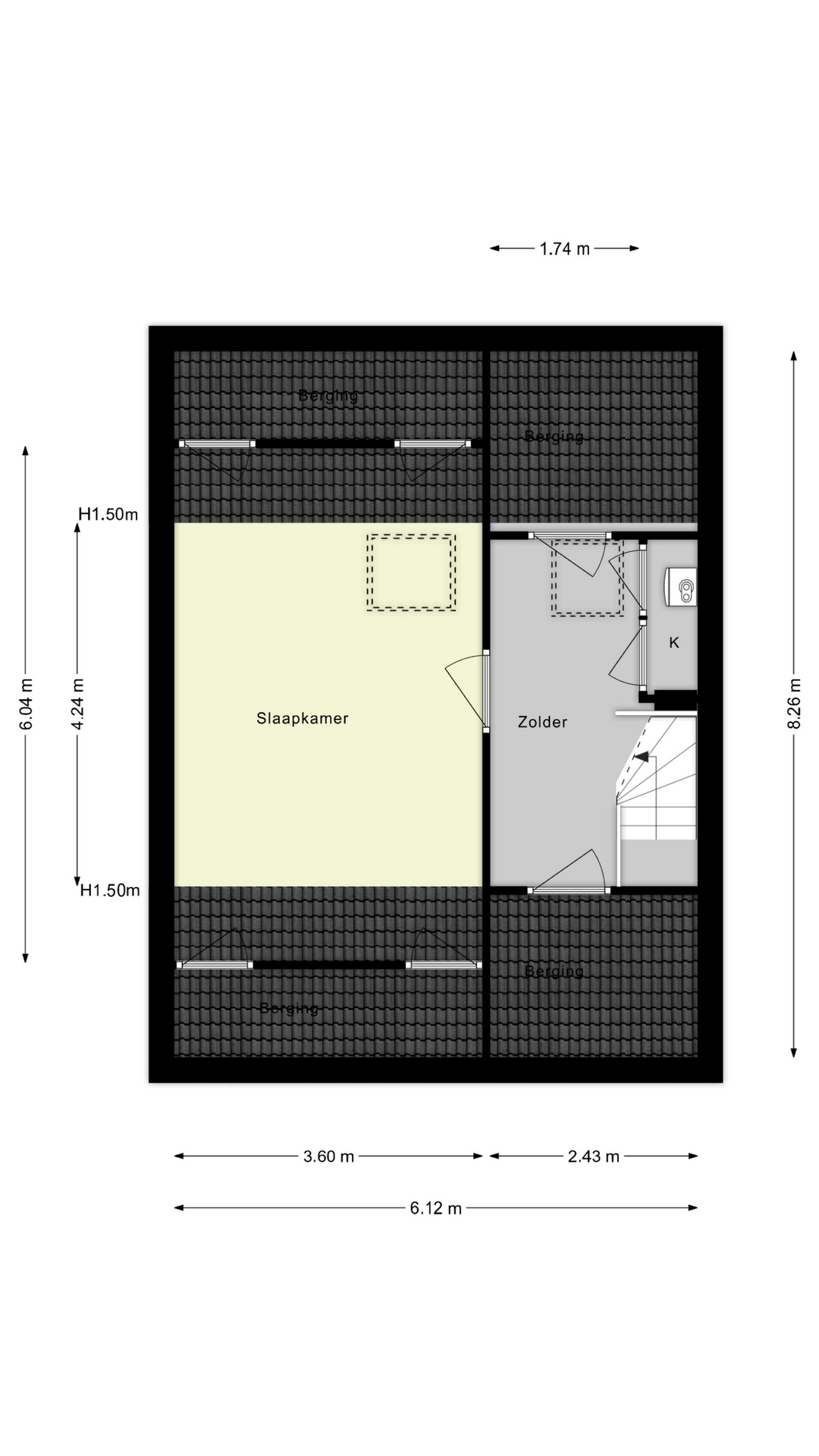
Tweede verdieping
Via de vaste trap kom je op zolder. Hier tref je de vierde slaapkamer met dakraam, ook perfect voor een werkplek. Op de overloop vind je de aansluitingen voor wasmachine en droger en ook weer een dakraam, handig en praktisch.

Extra pluspunten van deze woning
– Vier lichte en ruime slaapkamers
– Instapklaar met pvc-vloer (2025) en airco’s
– Tuin op het westen voor zon in de middag en avond
– Lichte woonkamer met uitzicht op het veldje aan de voorzijde
– Keuken met granieten blad en moderne apparatuur
– Grotendeels geïsoleerde garage (dakbedekking 2022)
– Er is dit jaar een nieuwe schutting en poort geplaats
– De dakgoten zijn vervangen in 2022
– Maar liefst 16 zonnepanelen uit 2022!
– Volledig na-geïsoleerd en energielabel A

Kortom, de Van Leeuwenhoeklaan 53 is een huis waar je zo in kunt en wat direct als je eigen plek zal voel. Kom het zelf ervaren en ontdek hoe prettig wonen hier kan zijn, een bezichtiging zegt meer dan duizend woorden! De bieden VANAF-prijs is € 349.000,- k.k.

  • / foto's
  • Hal 0
  • Woonkamer 1
  • Keuken 2
  • Tuin 3
  • Garage 4
  • Overloop 5
  • Badkamer 6
  • Slaapkamer 7
  • Slaapkamer 8
  • Slaapkamer 9
  • Zolder 10
  • Zolder 11
Algemeen
Vraagprijs
€ 349.000,-
Status
Verkocht
Aanvaarding
In overleg
Bouw
Soort woonhuis
Woonhuis
Soort bouw
Tussenwoning
Bouwjaar
1972
Soort dak
Zadeldak
Oppervlakten en inhoud
Woonoppervlakte
126 m2
Inhoud
400 m3
Perceeloppervlakte
167 m2
Indeling
Aantal kamers
5
Aantal slaapkamers
4
Aantal woonlagen
3
Voorzieningen
TV kabel, Buitenzonwering, Airconditioning, Dakraam, Glasvezel kabel, Zonnepanelen
Tuin en overige buiten ruimtes
Ligging
Aan rustige weg, In woonwijk
Tuin
Achtertuin, Voortuin
Ligging tuin
West
Kwaliteit tuin
Verzorgd
Soort garage
Vrijstaand steen
Voorzieningen garage
Elektra
Energie
Energielabel
A
Isolatie
Dakisolatie, Muurisolatie, Vloerisolatie, Dubbelglas, Volledig geïsoleerd
Verwarming
CV ketel
Warm water
CV ketel
Cv-ketel
Intergas HR
  • Plattegrond 1
  • Plattegrond 2
  • Plattegrond 3
  • Plattegrond 4
  • Plattegrond 5
Plattegrond
Plattegrond
Plattegrond
Plattegrond
Plattegrond

Advies

Wij adviseren je graag bij het kiezen van een hypotheek. Neem
vrijblijvend contact met ons op voor meer informatie.

Contact
  • /
  • Dit veld is bedoeld voor validatiedoeleinden en moet niet worden gewijzigd.

Afspraak maken?

0314 74 60 60