van Limburg Stirumlaan 89, 7003 BJ Doetinchem

€ 345.000,- k.k

Afspraak maken
Kenmerken
Omschrijving
Foto's
360 panorama
Video's
Plattegrond
Kaart en Route
Brochure
Hypotheek advies

Doetinchem – van Limburg Stirumlaan 89

Zeg nou zelf: hoe vaak vind je een hoekwoning die instapklaar, uitgebouwd, gerenoveerd en heerlijk licht is? Precies, dit is er zo één. De woning staat op een ruim perceel van maar liefst 341 m2 eigen grond en beschikt ook nog over een eigen parkeerplek én een garage.

De ligging is zonder meer een pluspunt. Alles is in de buurt: supermarkten, scholen, sportvoorzieningen en een zwembad liggen op loop- of fietsafstand. Zin in een wandeling? De Koekendaal en natuurgebied de Zumpe liggen vlakbij. Ook het stadscentrum van Doetinchem bereik je snel, net als de uitvalswegen richting Arnhem en Enschede.

Indeling
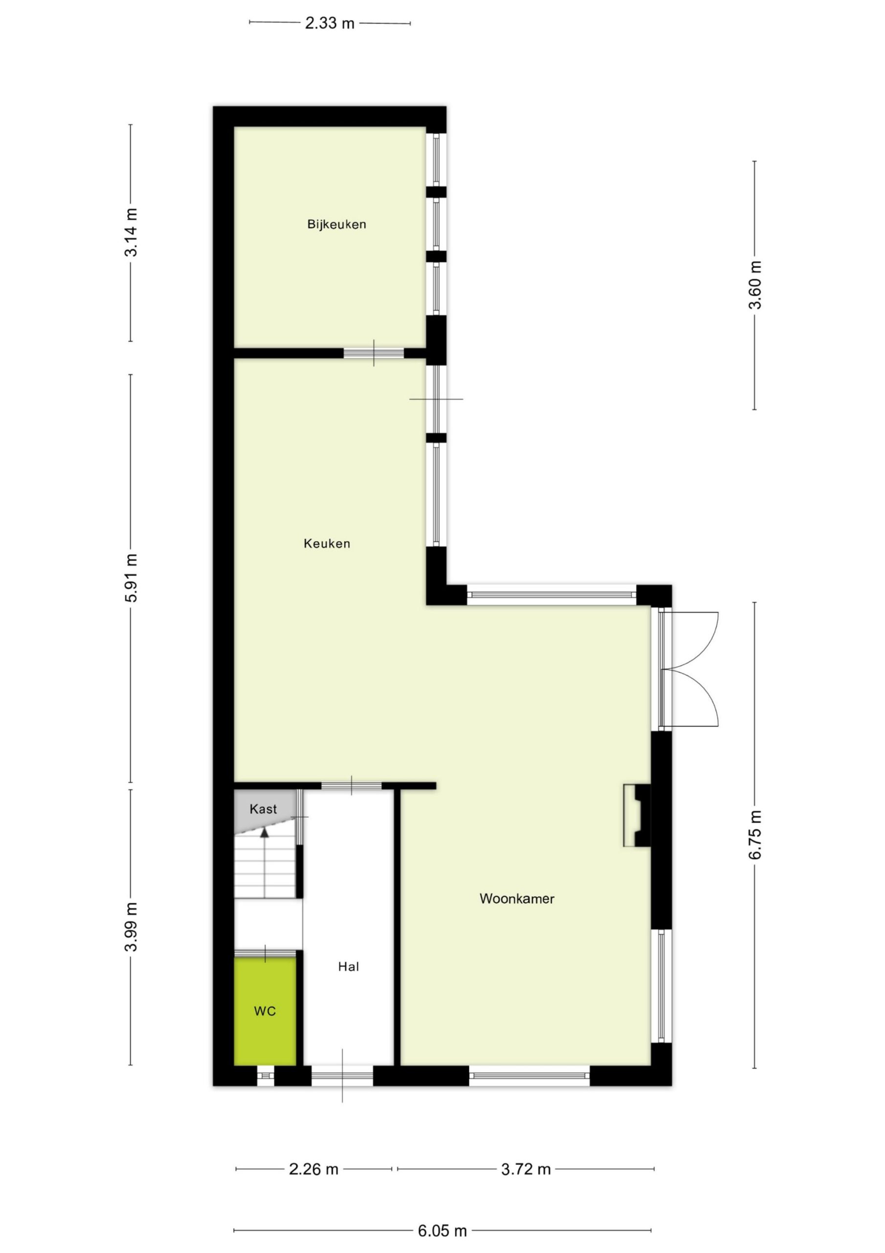
Begane grond
De hal geeft toegang tot het toilet, de trapopgang en een handige trapkast. De woonkamer voelt heerlijk licht aan door de vele raampartijen en bied een warme huiselijke plek. Wel zo fijn. De woonkamer heeft ook dubbele tuindeuren. Door de verandering in de indeling en de uitbouw is er een heerlijke ruime keuken ontstaan. De open keuken is deels geplaatst in de uitbouw en is compleet met koelkast, vaatwasser, oven, gaskookplaat en afzuiging. Ook is er een verbinding naar de bijkeuken. Deze zorgt voor extra veel bergruimte, mede door de bergzolder. Vanuit de woonkamer loop je via openslaande deuren door naar de tuin, praktisch en gezellig tegelijk.

Eerste verdieping
Drie slaapkamers, waarvan één met toegang tot het dakterras. De grootste slaapkamer heeft een vaste kast en een Frans balkon. De badkamer is in 2021 vernieuwd en is compleet met een wastafelmeubel, inloopdouche en toilet.

Zolder
De bergzolder is bereikbaar via een losse trap en biedt plek voor opslag, mechanische ventilatiebox en de CV-opstelling.

Tuin
Het perceel van 341 m2 biedt een eigen parkeerplek en een garage. De tuin ligt rondom de woning, is onderhoudsvriendelijk maar toch groen aangelegd en biedt meer dan voldoende ruimte om te ontspannen.

Hoogtepunten van deze woning:
– Instapklaar en gerenoveerd
– Hoekwoning met veel natuurlijk licht
– Houtkachel in de woonkamer
– Diverse kozijnen en beglazing zijn vervangen
– De spouw is nageïsoleerd
– Vernieuwde voordeur in 2025
– Schoorsteen is gerenoveerd
– Open keuken met keukenopstelling uit 2018
– Drie slaapkamers, dakterras en Frans balkon
– Eigen parkeerplek en garage
– Bijkeuken voor extra bergruimte

Een praktische, comfortabele woning met alles wat je nodig hebt. Maak een afspraak bij Vredegoor Lanting Makelaars en ontdek zelf hoe fijn dit huis aanvoelt. Op naar jouw nieuwe (t)huis. Here we go! De VANAF prijs is € 345.000,- kosten koper.

  • / foto's
  • Woonkamer 0
  • Keuken 1
  • Tuin 2
  • Overloop 3
  • Slaapkamer 4
  • Slaapkamer 5
  • Slaapkamer 6
  • Badkamer 7
Algemeen
Vraagprijs
€ 345.000,-
Status
Verkocht
Aanvaarding
In overleg
Bouw
Soort woonhuis
Woonhuis
Soort bouw
Hoekwoning
Bouwjaar
1956
Soort dak
Zadeldak
Oppervlakten en inhoud
Woonoppervlakte
97 m2
Inhoud
374 m3
Perceeloppervlakte
341 m2
Indeling
Aantal kamers
5
Aantal slaapkamers
3
Aantal woonlagen
3
Voorzieningen
Mechanische ventilatie, Glasvezel kabel
Tuin en overige buiten ruimtes
Ligging
Aan rustige weg, In woonwijk
Tuin
Achtertuin, Voortuin, Zijtuin
Ligging tuin
Noord
Kwaliteit tuin
Verzorgd
Soort garage
Vrijstaand steen
Voorzieningen garage
Elektra
Energie
Energielabel
C
Isolatie
Dakisolatie, Muurisolatie, Grotendeels dubbelglas
Verwarming
CV ketel, Houtkachel
Warm water
CV ketel
Cv-ketel
Vaillant HR
  • Plattegrond 1
  • Plattegrond 2
  • Plattegrond 3
  • Plattegrond 4
  • Plattegrond 5
Plattegrond
Plattegrond
Plattegrond
Plattegrond
Plattegrond

Advies

Wij adviseren je graag bij het kiezen van een hypotheek. Neem
vrijblijvend contact met ons op voor meer informatie.

Contact
  • /
  • Dit veld is bedoeld voor validatiedoeleinden en moet niet worden gewijzigd.

Afspraak maken?

0314 74 60 60