Zuivelweg 17, 7003 CA Doetinchem

€ 319.500,- k.k

Afspraak maken
Kenmerken
Omschrijving
Foto's
360 panorama
Video's
Plattegrond
Kaart en Route
Brochure
Hypotheek advies

Doetinchem – Zuivelweg 17

Here we go! We nemen je mee naar de Zuivelweg 17 in Doetinchem, een tweekapper uit 1969 met volop potentie. Een woning die nog niet “af” is, maar juist volop mogelijkheden biedt om er helemaal jouw eigen plek van te maken. Parkeren is hier alvast prettig geregeld: je beschikt over twee eigen parkeerplekken, een carport én een garage. Binnen voel je meteen de basis van een fijn familiehuis met een praktische indeling

De ligging in de wijk Schöneveld is ideaal voor wie rust zoekt, maar ook nabij het centrum van Doetinchem wil wonen. Scholen, winkels, sportvoorzieningen, grote speeltuin, het ziekenhuis,
natuurspeeltuin Doetebol én natuurgebied De Zumpe liggen allemaal dichtbij. Hier woon je ruim met het treinstation, diverse busverbindingen én alle voorzieningen binnen handbereik.

Indeling
Begane grond
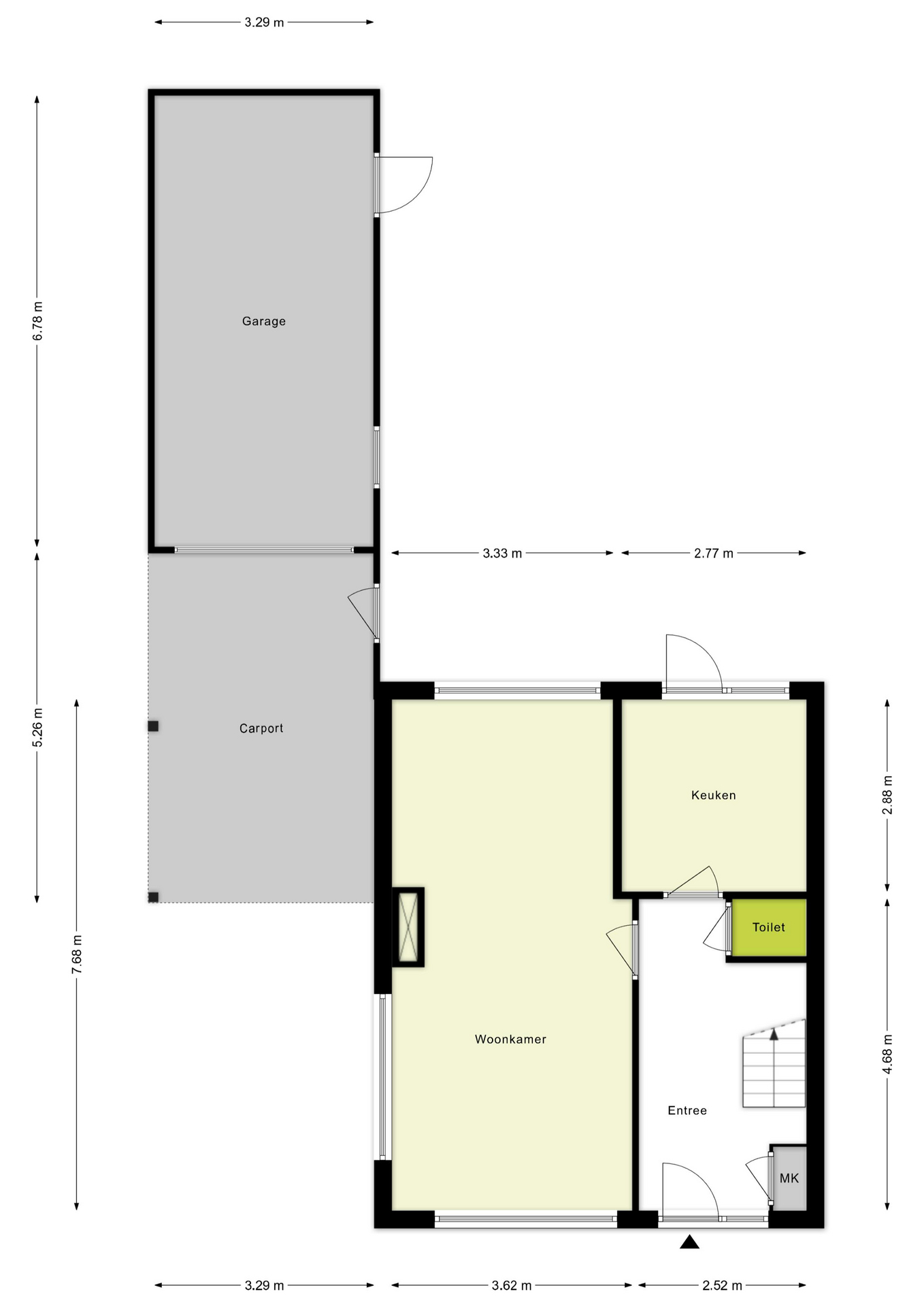
Je komt binnen in de hal met toilet en toegang tot de woonkamer en keuken. De woonkamer biedt een prettige leefruimte met voldoende plek voor een gezellige zithoek en eethoek. De keuken is eenvoudig uitgevoerd, voorzien van een vaatwasser, gaskookplaat en afzuigkap. Ideaal als startpunt: dit is zo’n plek waar je jouw droomkeuken kunt realiseren. Vanuit de keuken stap je zo de tuin in, waar je alle vrijheid hebt om van de fijne buitenruimte te genieten. Deze is heerlijk privé gelegen, waardoor je hier in alle rust kunt genieten van het buitenleven. Extra praktisch is de directe toegang tot de garage, ideaal voor het stallen van fietsen of het klussen.
Ook de voortuin is het benoemen waard: deze is ruim opgezet en groen aangelegd, wat zorgt voor een prettige en verzorgde eerste indruk van de woning.

Eerste verdieping
Op de eerste verdieping vind je drie slaapkamers en een badkamer. Deze is voorzien van een toilet, wastafel en inloopdouche. Een praktische indeling die je geheel naar de tijd van nu kunt maken. Eén van de slaapkamers heeft toegang tot een balkon.

Tweede verdieping
Via de vaste trap bereik je de tweede verdieping. Op de overloop is ruimte om bijvoorbeeld een wasmachine te plaatsen, de was te drogen en heb je ook plek voor opslag. Verder heb je hier toegang tot de vierde slaapkamer, voorzien van een dakraam. Een fijne extra kamer met ook wederom bergruimte.

Kenmerken van de woning
– Tweekapper uit 1969
– Perceel van 245 m²
– Woonoppervlakte van ca. 118 m2
– Twee eigen parkeerplekken en garage
– Vier slaapkamers
– Volledig naar eigen smaak te moderniseren
– Praktische indeling met vaste trap naar zolder

Een woning met een solide basis en vooral heel veel mogelijkheden. Zie jij het al voor je hoe je hier jouw eigen woonplan werkelijkheid maakt? Maak snel een afspraak voor een bezichtiging via Vredegoor Lanting Makelaars en ontdek zelf wat hier allemaal mogelijk is. De bieden VANAF-prijs is € 319.500,- k.k.

  • / foto's
  • Hal 0
  • Woonkamer 1
  • Keuken 2
  • Tuin 3
  • Overloop 4
  • Badkamer 5
  • Slaapkamer 6
  • Slaapkamer 7
  • Slaapkamer 8
  • Zolder 9
  • Slaapkamer 10
Algemeen
Vraagprijs
€ 319.500,-
Status
Onder bod
Aanvaarding
In overleg
Bouw
Soort woonhuis
Woonhuis
Soort bouw
Twee onder één kapwoning
Bouwjaar
1969
Soort dak
Zadeldak
Oppervlakten en inhoud
Woonoppervlakte
118 m2
Inhoud
389 m3
Perceeloppervlakte
245 m2
Indeling
Aantal kamers
5
Aantal slaapkamers
4
Aantal woonlagen
3
Voorzieningen
Dakraam, Glasvezel kabel
Tuin en overige buiten ruimtes
Ligging
Aan rustige weg, In woonwijk
Tuin
Achtertuin, Voortuin
Ligging tuin
Oost
Kwaliteit tuin
Normaal
Soort garage
Aangebouwd steen
Voorzieningen garage
Elektra
Energie
Energielabel
C
Isolatie
Dakisolatie, Grotendeels dubbelglas
Verwarming
CV ketel, Open haard
Warm water
CV ketel
Cv-ketel
Atag HR
  • Plattegrond 1
  • Plattegrond 2
  • Plattegrond 3
  • Plattegrond 4
Plattegrond
Plattegrond
Plattegrond
Plattegrond

Advies

Wij adviseren je graag bij het kiezen van een hypotheek. Neem
vrijblijvend contact met ons op voor meer informatie.

Contact
  • /
  • Dit veld is bedoeld voor validatiedoeleinden en moet niet worden gewijzigd.

Afspraak maken?

0314 74 60 60