Veenweg Bouwkavel 160 ong, 7031 GJ Wehl

€ 609.000,- v.o.n.

Afspraak maken
Kenmerken
Omschrijving
Foto's
Kaart en Route
Brochure
Hypotheek advies

Wehl – Veenweg Bouwkavel 160 ong

Onder architectuur van Arx-Architecten ontworpen moderne, ruime 2 onder 1 kap woning. Droom jij van een splinternieuwe woning die je helemaal naar jouw eigen smaak kunt afwerken? Dan is deze moderne tweekapper in de jonge wijk Heideslag in Wehl er één om serieus naar uit te kijken. Deze woning wordt in 2026 gebouwd en krijgt een luxe, strakke eigentijdse uitstraling die helemaal past bij de woonwensen van nu.

Aan ruimte geen gebrek want de kavel is bovengemiddeld groot met 350 m2 en dit geldt tevens voor de oppervlakte van de woning welke een basis afmeting heeft van maar liefst 197 m2. Het grote voordeel van nieuwbouw? Alles is nieuw, energiezuinig en toekomstbestendig. Tegelijkertijd heb je nog alle vrijheid om het huis echt eigen te maken. De woning wordt behangklaar opgeleverd, zodat jij zelf de afwerking, kleuren en vloeren kunt kiezen. Zo ontstaat straks een thuis dat helemaal bij jou past.

Heideslag is een jonge en geliefde woonwijk waar modern wonen en rust samenkomen. Hier woon je in een kindvriendelijke omgeving met veel nieuwe woningen en een prettige sfeer. In het dorp Wehl vind je alle dagelijkse voorzieningen zoals winkels, scholen, sportclubs en het station. Binnen enkele minuten zit je op de snelweg en ook het centrum van Doetinchem ligt vlakbij. Voor een wandeling of een frisse neus ligt de natuur bovendien altijd binnen handbereik.

Indeling
Begane grond
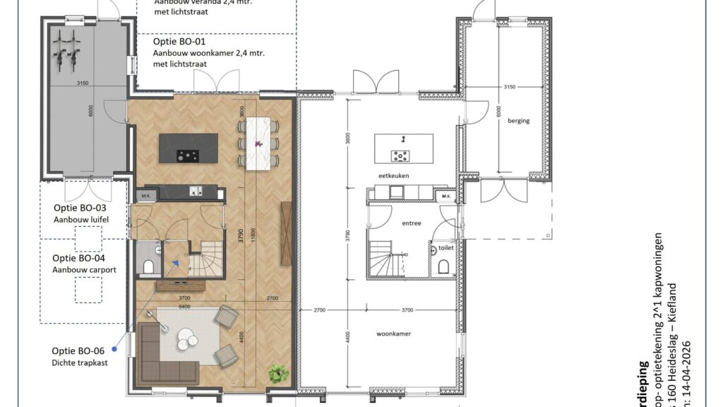
Je parkeert de auto straks gewoon op eigen terrein en loopt naar de entree van de woning. In de ruime hal vind je het toilet en de trapopgang naar boven. Aan de voorzijde van de woning ligt de ruime woonkamer, een fijne plek om te ontspannen met uitzicht op de straat. Aan de achterzijde bevindt zich het hart van het huis: de ruime woonkeuken. Deze biedt volop ruimte om uitgebreid te koken en gezellig te tafelen. Via de openslaande deuren stap je straks zo de achtertuin in. In de zomer zet je alles open en lopen binnen en buiten moeiteloos in elkaar over. Vanuit de keuken heb je bovendien direct toegang tot de garage/ berging, ideaal voor fietsen, extra opslag of hobbyspullen. Wil je nog meer ruimte of comfort? Bij de bouw zijn diverse opties mogelijk, zoals een uitbouw aan de achterzijde, veranda en carport.

Tuin
De diepe op het zuid-west gerichte tuin geeft je alle vrijheid om deze volledig naar eigen wens in te richten. Denk aan een terras, een groene tuin of een fijne speelplek voor kinderen.

Eerste verdieping
Op de eerste verdieping bevinden zich drie grote slaapkamers. Twee van deze kamers zijn voorzien van een dakkapel – risaliet, wat zorgt voor extra ruimte en veel daglicht. De badkamer krijgt een prettig lichtinval dankzij het dakraam. Hier creëer je straks een fijne plek om de dag rustig te beginnen of ontspannen af te sluiten. Er is ook een alternatieve indeling met een techniekruimte mogelijk.

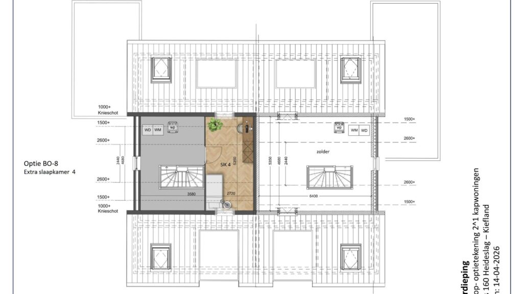
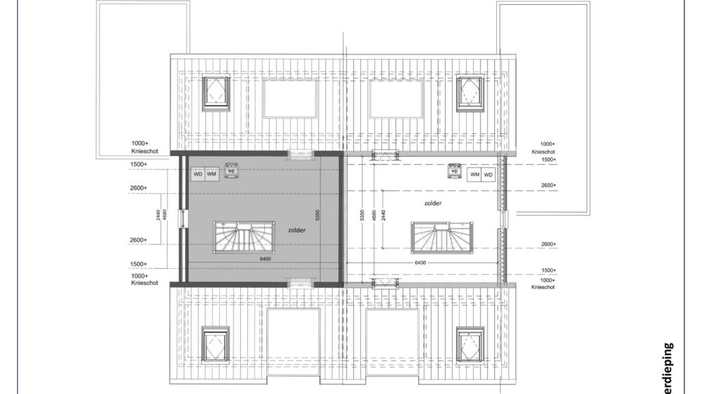
Zolder
Via een vaste trap bereik je de zolderverdieping. Dit is een open ruimte met praktische bergruimte achter de knieschotten. Hier vind je ook de aansluitingen voor de wasmachine en droger. De zolder biedt volop mogelijkheden: van extra opslag tot een extra slaapkamer.

Comfort en duurzaamheid
Deze woning wordt volledig gebouwd volgens de standaarden van nu. Dat betekent veel comfort, een aangenaam binnenklimaat en een laag energieverbruik. Zo woon je hier volledig gasloos en wordt de woning uitgerust met een lucht-water warmtepomp, een 190 liter boiler, vloerverwarming op de begane grond en eerste verdieping en de mogelijkheid tot koeling via de vloer. Daarnaast zorgen zonnepanelen voor extra energiezuinigheid en comfortabel wonen. De woning wordt voorzien van houten kozijnen met Tripel HR++ glas.

Enkele fijne weetjes:
– Nieuwbouw met een strakke moderne uitstraling
– Gebouwd met bouwgarant
– Volledig gasloos en energiezuinig
– Lucht-water warmtepomp met 190 liter boiler
– Vloerverwarming op begane grond en eerste verdieping, met koelmogelijkheid
– PV panelen en Co2 gestuurde ventilatiesysteem
– Woonkeuken met openslaande deuren naar de tuin
– Geïsoleerd garage/ berging is binnendoor bereikbaar
– Drie slaapkamers, waarvan twee met dakkapel/risaliet
– Keramische dakpannen
– Vaste trap naar ruime zolder met mogelijkheid voor 1 of 2 extra slaapkamers
– Houten kozijnen met HR++ tripel glas
– Badkamer en toilet inclusief tegelwerk en lux Villeroy & Boch sanitair

Kortom: een moderne nieuwbouwwoning waar je straks helemaal je eigen draai aan kunt geven. Kies de vloeren, bepaal de kleuren en maak van deze woning in Heideslag in Wehl jouw nieuwe thuis. Wil je meer informatie? Bel dan even met Vredegoor Lanting Makelaars!

  • / foto's
Algemeen
Vraagprijs
€ 609.000,-
Status
Beschikbaar
Aanvaarding
In overleg
Bouw
Soort woonhuis
Woonhuis
Soort bouw
Twee onder één kapwoning
Bouwjaar
2026
Soort dak
Zadeldak
Oppervlakten en inhoud
Woonoppervlakte
178 m2
Inhoud
695 m3
Perceeloppervlakte
350 m2
Indeling
Aantal kamers
5
Aantal slaapkamers
3
Aantal woonlagen
3
Voorzieningen
Dakraam, Glasvezel kabel, Zonnepanelen
Tuin en overige buiten ruimtes
Ligging
Aan rustige weg, In woonwijk
Tuin
Achtertuin, Voortuin
Ligging tuin
Zuidwest
Kwaliteit tuin
Aan te leggen
Schuur/berging
1
Schuur/berging soort
Aangebouwd steen
Schuur/berging voorzieningen
Voorzien van elektra
Soort garage
Geen garage
Energie
Energielabel
A+++
Isolatie
Dakisolatie, Muurisolatie, Vloerisolatie, Volledig geïsoleerd
Warm water
Elektrische boiler eigendom

Advies

Wij adviseren je graag bij het kiezen van een hypotheek. Neem
vrijblijvend contact met ons op voor meer informatie.

Contact
  • /
  • Dit veld is bedoeld voor validatiedoeleinden en moet niet worden gewijzigd.

Afspraak maken?

0314 74 60 60