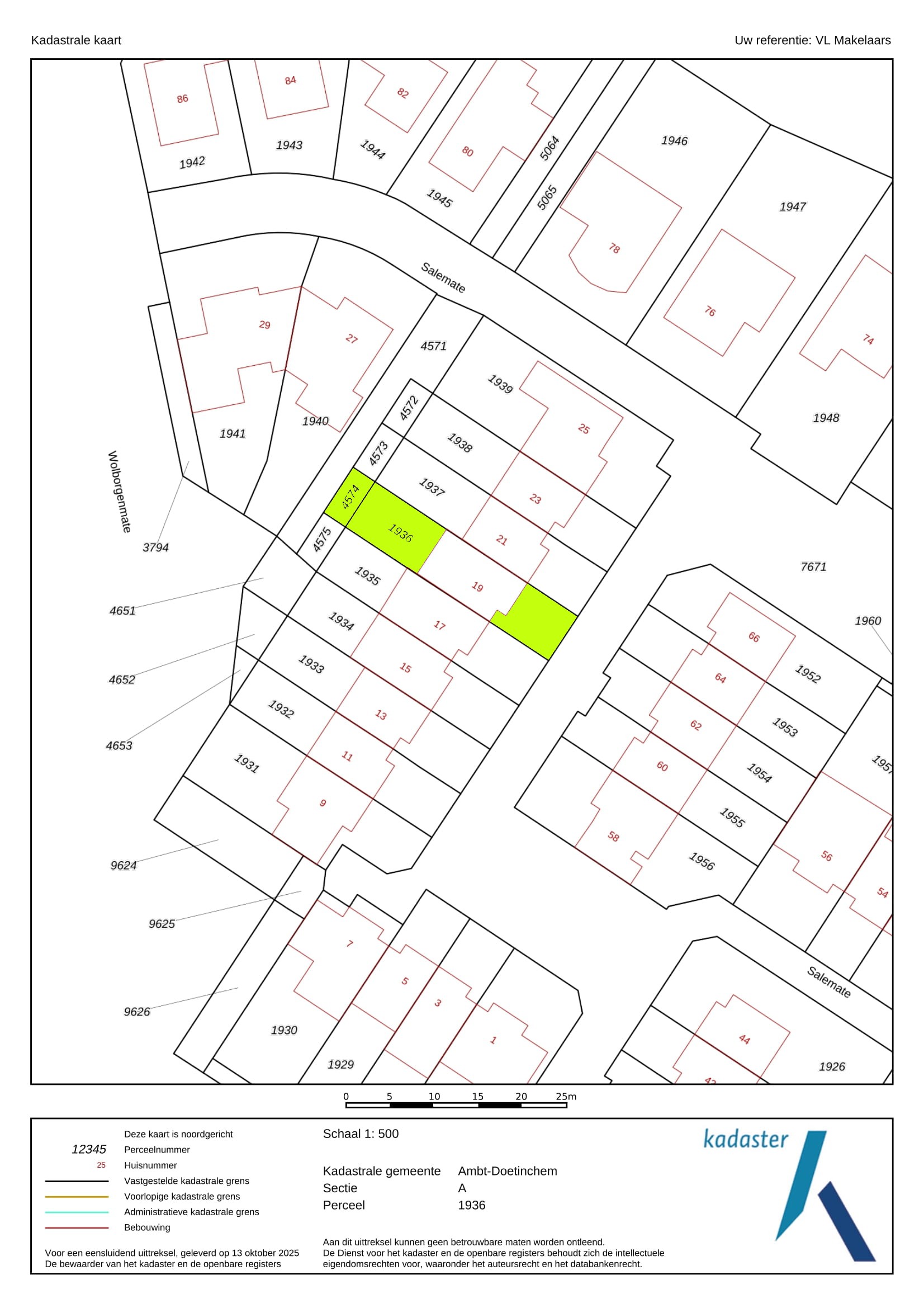
Salemate 19, 7006 CA Doetinchem

€ 309.000,- k.k

Afspraak maken
Kenmerken
Omschrijving
Foto's
360 panorama
Video's
Plattegrond
Kaart en Route
Brochure
Hypotheek advies

Doetinchem – Salemate 19

Soms stap je een huis binnen en merk je meteen: dit is een plek met potentie. De sfeer, de ruimte, het gevoel dat je hier moeiteloos je eigen plek van kunt maken. De Salemate 19 is precies zo’n huis. Warm en huiselijk met verrassend veel leefruimte en fijne details die het wonen hier prettig maken, van de houtkachel in de woonkamer tot de groene tuin waar je heerlijk beschut zit.

Het betreft een gunstig gelegen tussenwoning in het eerste deel van woonwijk De Huet op korte afstand van het stadscentrum, buurtwinkelcentrum De Bongerd, een park, diverse sportfaciliteiten en de voornaamste uitvalswegen. Er zijn parkeergelegenheden in de straat en voor kinderen zijn er voldoende speeltuinen en scholen, perfect voor een gezin met kinderen.

Indeling
Begane grond
Binnen kom je in de hal met het toilet, de trapkast en de trap naar boven. Rechtdoor stap je de woonkamer in en daar voel je meteen de sfeer. Dit is zo’n ruimte waar geleefd wordt. De grenen parketvloer en de houtkachel zorgen voor warmte en een huiselijk gevoel. Doordat de woonkamer aan de achterzijde is uitgebouwd, is er volop ruimte voor een fijne zithoek én een grote eettafel. Via een portaal loop je zo door naar buiten. Aan de voorzijde van de woning ligt de open keuken. Deze is wat ouder, maar nog netjes en compleet uitgevoerd met een vaatwasser, oven, magnetron en gaskookplaat met afzuigkap. Een keuken die prima functioneert zoals hij nu is, maar die ook alle ruimte biedt om er op termijn jouw eigen stijl in aan te brengen.

Tuin
Buiten vind je een sfeervolle, groen aangelegde tuin. Door de beplanting zit je hier prettig beschut en geniet je van veel privacy. Een fijne plek om buiten te zijn, of je nu graag tuiniert of gewoon wilt ontspannen.

Eerste verdieping
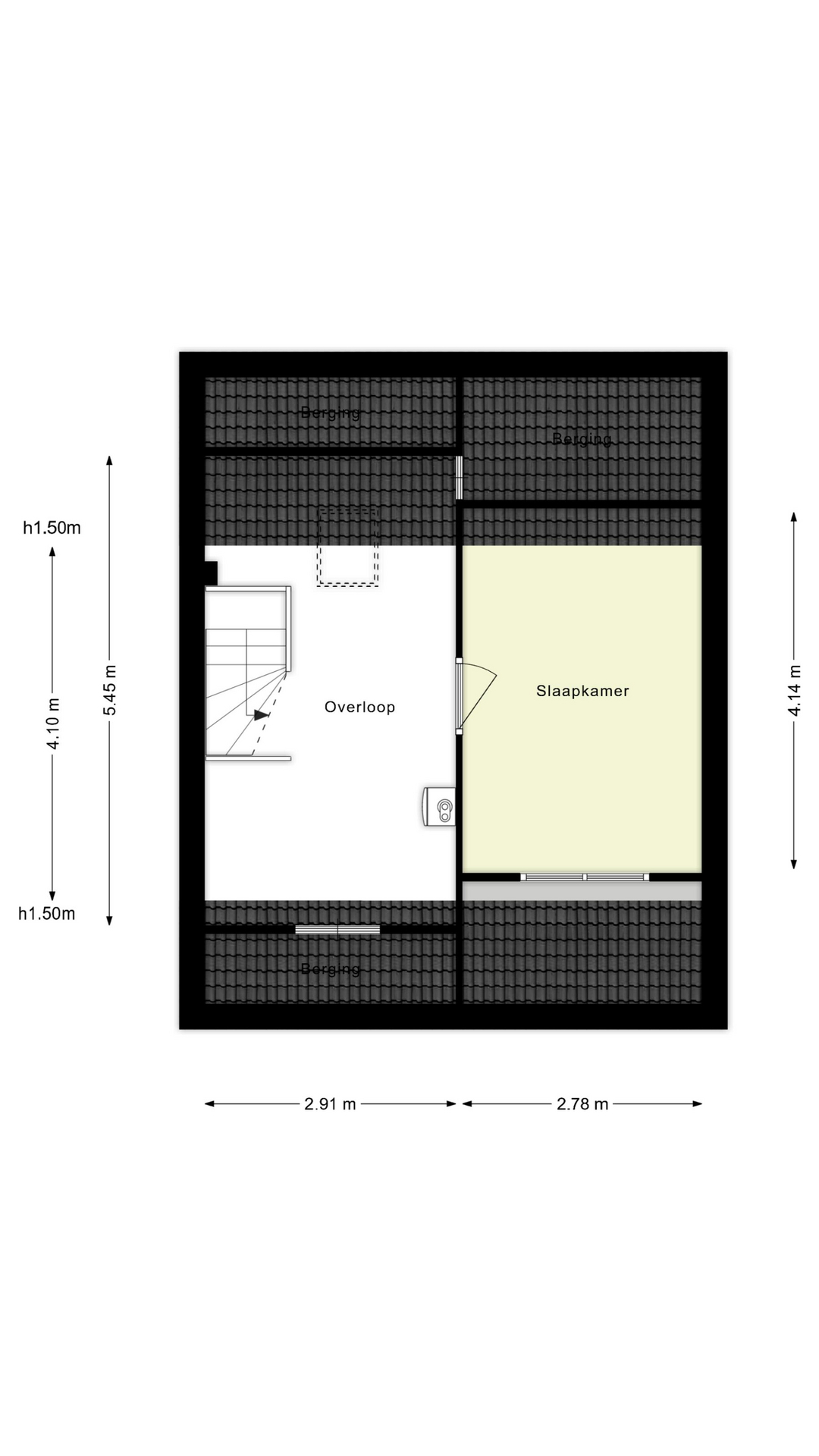
Op de eerste verdieping bevinden zich drie slaapkamers, stuk voor stuk prettig van formaat. Eén van de slaapkamers is voorzien van een wastafel. De badkamer is praktisch ingericht en beschikt over een inloopdouche, wastafel, toilet en vloerverwarming.

Tweede verdieping
Via een vaste trap bereik je de tweede verdieping. Hier kom je eerst op een ruime overloop met aansluitingen voor de wasmachine en droger. Aansluitend ligt de vierde slaapkamer, die dankzij de dakopbouw verrassend ruim aanvoelt.

Waarom de Salemate 19 zo fijn is:
– Eigen oprit met carport
– Stenen berging bereikbaar vanaf de oprit
– Uitgebouwde woonkamer met houtkachel
– Vier slaapkamers
– De woning is deels voorzien van rolluiken, wat zorgt voor extra comfort
– Groene tuin met veel privacy

Deze woning heeft een warme uitstraling. Tegelijkertijd biedt deze woning volop mogelijkheden om haar verder naar eigen wensen te vormen. Of je nu direct comfortabel wilt wonen of stap voor stap wilt aanpassen, hier kan het allebei. Benieuwd geworden? Dan laten we je deze woning graag zelf ervaren. Ga jij met Vredegoor Lanting Makelaars op woonreis? De bieden VANAF-prijs is € 309.000,- k.k.

  • / foto's
  • Hal 0
  • Keuken 1
  • Woonkamer 2
  • Tuin 3
  • Overloop 4
  • Slaapkamer 5
  • Slaapkamer 6
  • Slaapkamer 7
  • Badkamer 8
  • Zolder 9
  • Slaapkamer 10
Algemeen
Vraagprijs
€ 309.000,-
Status
Verkocht
Aanvaarding
In overleg
Bouw
Soort woonhuis
Woonhuis
Soort bouw
Tussenwoning
Bouwjaar
1979
Soort dak
Plat dak
Oppervlakten en inhoud
Woonoppervlakte
125 m2
Inhoud
395 m3
Perceeloppervlakte
186 m2
Indeling
Aantal kamers
5
Aantal slaapkamers
4
Aantal woonlagen
3
Voorzieningen
Rolluiken, TV kabel, Dakraam, Glasvezel kabel
Tuin en overige buiten ruimtes
Ligging
Aan rustige weg, In woonwijk
Tuin
Achtertuin, Voortuin
Ligging tuin
Noordwest
Kwaliteit tuin
Normaal
Schuur/berging
1
Schuur/berging soort
Vrijstaand steen
Soort garage
Carport, Geen garage
Energie
Energielabel
C
Isolatie
Dakisolatie, Vloerisolatie, Gedeeltelijk dubbelglas
Verwarming
CV ketel, Vloerverwarming gedeeltelijk
Warm water
CV ketel
Cv-ketel
Remeha
  • Plattegrond 1
  • Plattegrond 2
  • Plattegrond 3
  • Plattegrond 4
  • Plattegrond 5
  • Plattegrond 6
Plattegrond
Plattegrond
Plattegrond
Plattegrond
Plattegrond
Plattegrond

Advies

Wij adviseren je graag bij het kiezen van een hypotheek. Neem
vrijblijvend contact met ons op voor meer informatie.

Contact
  • /
  • Dit veld is bedoeld voor validatiedoeleinden en moet niet worden gewijzigd.

Afspraak maken?

0314 74 60 60